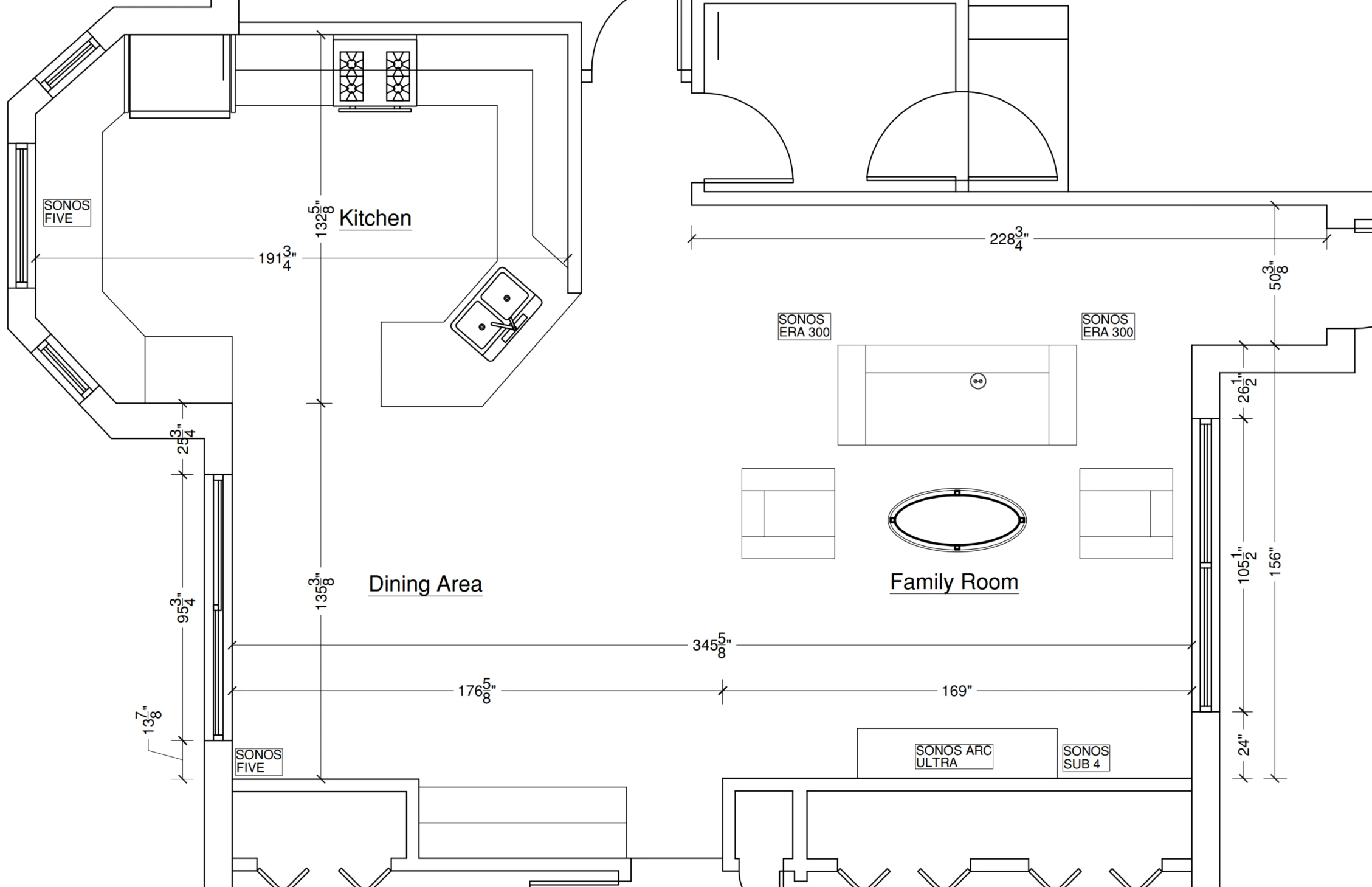
Hello everyone. Quick question about speaker placement as I am fairly new to Sonos. I recently upgraded to the arc ultra, gen 4 sub, 1 pair of Fives and 1 pair of Era 300 from 1 pair of one SL and 1 pair of Era 100. Below is the open concept floor plan. I plan on using the arc and sub for home theater and the Fives and Era 300 for playing music. The arc would go below the TV on the unit and the sub to the left of it. My plan was to put the 1 pair of Fives on speaker stands in the family room. Put the one Era 300 in the dining room on a stand and the one Era 300 in the dining room directly on the counter as it is out of the work area. Any suggestions would be greatly appreciated.
Thank you.


